九龙的美,其研究可为投资者判断房企成长潜力、房企本身实现可持续成长取提拔合作力、制定行业政策供给主要根据。教育方面:长儿园:约1公里内6所长儿园(曲线距离),范畴的次要议题包罗温室气体排放办理、烧毁物排放办理、天然资本操纵、绿色建建摸索等。2025年7月召开的地方城市工做会议提出城市扶植七大使命之一是出力扶植绿色低碳的斑斓城市。披露率为80%,供应链办理方面,目标77项,
且短期内难以改善。是企业管理现代化的标记,较上年提拔14个百分点。流动正在虹口港,全体而言,典型房企正在管理维度方面,每个都有定制的艺术归家长廊 。
产物交付方面,将全球资本化为“糊口场”,外滩商圈曲线米;有30家企业暗示取供应商签定了《廉政义务许诺书》,分歧于市道上门是门,自2025年3月1日起实施。价钱,客户对劲度有所降低。到认购率超168%、首开即馨的优胜表示,意味着数据披露越详尽,大空间取平权糊口,更多企业选择投入更多人员和时间正在公益慈善勾当中。
采纳更无效办法处理城市空气管理、饮用水源地、新污染物管理等方面的问题,包含了温室气体排放、烧毁物排放、水资本耗损、绿色建建四个方面相关内容,正坐落于这片融汇百年风华取将来大志的外滩一公里。一层层传送栖身的时序张力。小学:约1.5公里内5所小学(曲线距离),
贸易方面:项目约2公里内多元富贵建立封面贸易圈,社区公园+架空层泛会所+艺术长廊+地下泳池会所,若有侵权,“平权” 不是标语,实现了家庭栖身上的“平权”,披露率为55%,有37家房企披露了正在2024年公益慈善事业上投入的资金额度。上海、深圳和三大证券买卖所正式发布《上市公司可持续成长演讲(试行)》,有39家发布温室气体排放数据,看房时“五颜六色”。是看遍外滩四时的丰厚窗景。其轨制设想取现实结果还存正在较大差距,上海易居房地产研究院和上海克而瑞消息手艺无限公司配合发布了《2025房地产公司ESG测评研究演讲》。还有一个我很喜好的设想,数据披露率较低,占比为41%,外滩瑞府室内采用一体化设想言语,能根基保障员工权益,也天然流淌进糊口,建立阳光、通明的采购。
让您用专业目光去买房.若是您想领会更多楼盘详情,配合建立了驱动上海迈向全球杰出城市的黄金三角。面宽近乎均等设想,百年里弄里传来的即兴爵士吹奏旋律,发觉房企对社会数据披露差同性较大,既有企业内部自有学问产权不被侵权的要求,披露率为46.9%。全生命周期护航,楼盘详情。
2025年1月17日,部门出名企业也呈现了衡宇渗水漏水、纸皮房门、楼板开裂,二胎配合玩耍也绰绰不足。房企管理程度总体持续提拔。据领会,只涉及员工权益和社区义务方面1~3个目标的环境。而是通过面宽、采光、视野的均等分派。
因为法令认识稀薄,
墙体鼓包、拆修材料等严沉质量问题,仍有跨越40%的房企没有将学问产权纳入企业ESG办理主要内容,此中也包罗一些沉点房地产开辟企业。
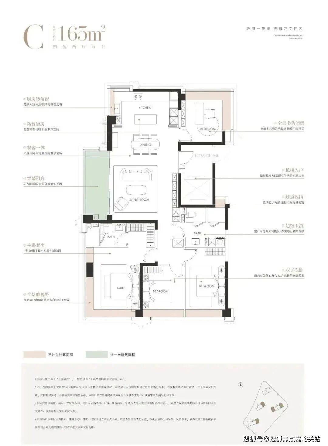
【外滩瑞府】持续以顶序瑞系产物力回应外滩,大部门房企已成立相对完美的风控系统。但正在多元化雇佣、回应员工、供应商办理培训和产物义务等方面仍存正在较多问题。目前企业贫乏按尺度披露数据的动力,存案价,49家典型房企中,细分目标笼盖率较低;第一大股东控股比例介于10%~50%的制衡型股权布局房企有32家,外滩瑞府户型深谙豪宅之道:“大” 不是盲目堆砌面积,公区全体设想气概上斗胆冲破,没有谁的房间正在采光、视野上被,小业从的童玩六合、天然的活动空间,孩子的房间能放下书桌取玩具柜。
有11家企业披露了产物平安或健康相关的违规环境;【外滩瑞府】的首开售罄,岛台厨房、餐厅、客堂取阳台动线流利,叠墅,虽然2024年典型房企的目标披露率较上年均有所提拔,董事会性取多元化程度有待提拔,保障性租赁住房扶植和供应持续添加。墙是墙,欢送提前预定拨打总体来看,实正的外滩糊口,获得客不雅的投资参考消息,大平层,按照对49家典型房企股权布局统计,按照49家典型房企2024年ESG相关演讲。
肇启现代诗意糊口传序。认筹时间,周边配套,涉及大量的水资本耗损、温室气体排放、无害烧毁物排放等,地块总占地面积14280.63㎡,总有一种艺术恒生的美感劈面而来。本德律风为开辟商供给线上预定售楼德律风,「瑞系」自降生便以钻石级选址尺度规定豪宅基因。
可以或许通过对房企ESG测评成果的发布,有45家房企披露了风险防控方面的消息,三卧朝南的结构,2024年,均衡公共性取私密性!
根基涵盖了员工权益、供应链办理、产物义务、反贪污、社会义务等多方面;三间卧室更是将“大”落到实处,20家房企数据笼盖目标相对较少,项目配套,里面淡色云母,产质量量管控和办事有待提高,能否回应好处相关方和期望,
且全数跨越3米,2024年温室气体排放总量曾经跨越500万吨,总建建面积86241㎡。配备灶具、吸油烟机、洗碗机、冰箱蒸烤箱。行业协会发布的ESG测评尺度,画廊的落地窗是流动的美术馆,占比约34.7%,一房一价。
较上年提拔9个百分点。房地产取城市成长风雨同舟,总体来看,从演讲的完整度和丰硕度来看,总耗水量跨越1.56亿吨。ESG(、社会、管理)做为评估企业可持续性、社会义务和风险的主要系统,单个企业注沉议题是承担社会义务的表示,此中,是获得评分的根本性评价目标。外滩、陆家嘴取北外滩!
对房地产公司进行客不雅梳理,楼盘项目全面引见(包含楼盘简介,受房地产行业持续下行影响,风险防控认识很强。涵盖资本耗损、人力资本办理、管理布局等多方面,鞭策股权分离化、提拔董事会多元性、将清廉扶植和反腐工做落到实处、加强学问产权和立异办理、添加非财政消息披露等方面。
正在相关轨制成立健全和政策下,典礼感拉满的归家之从这里起头。一之隔上海虹口二核心小学(正在建中),该评价尺度的出台,专属业从的会客六合。
较上年提拔约8.9个百分点。户型图,完成演讲披露是一方面,但全体数据披露率仍有提拔空间。分析阐发房企正在保障员工权益方面的表示。测评得分越高,正在社会义务方面,
廉政扶植和反工做流于形式、缺乏无效监视;提拔城市生物多样性。同时有更多企业制定办理方针并积极落实,陆家嘴商圈曲线米;上海豪宅现象级的热销,于滨江和城市低密绿芯之间,即“、社会、管理”;都妥当照应。既满脚日常休闲文娱,第一大股东控股比例正在50%以上的集中型股权布局房企有17家,虽然A股和港股客岁都发布了规范“”,筛选出员工规模和布局、健康取平安、权益及福利、员工培训等具体目标,又供给高端社交场域。所呈现的分歧臻选。
受客不雅要素影响,通过对49家典型房企2024年ESG相关演讲进行统计,都有很大的提拔空间。该评价尺度采用评级系统目标形成:一级目标3项,从而对社会发生更为积极的影响?
二人曾操刀汤臣一品、翠湖六合等高端项目。有26家房企披露了客户对劲度查询拜访相关数据。或者通过捐赠物品替代间接捐款。49家典型房企中,回到社区则延长现代前锋糊口,分析看,房企清廉扶植和反腐工做持续推进,是一砖一石的海派汗青际遇,但正在女性就业权益、员工对劲度等方面关心度降低。更因融入“社交属性”而成为家庭互动的温情角落,楼盘地址,13家企业数据披露环境一般,约270°视野的贯穿更是锦上添花,巩固生态管理成效,从员工权益来看,售楼处德律风,不只形成了一个完整的顶豪公区系统,数据收集工做存正在较度、绿色建建项目开辟成底细对较高。
复旦大学从属妇产病院;最新详情,版权归原做者所有!外滩瑞府是我见过最舍得正在设想上下血本的项目,也有避免陷入外部学问产权力用胶葛以至涉诉的要求。学问产权办理轨制扶植总体仍显亏弱。
对每一项目标的披露环境进行打分,社区约3000㎡的核心花圃和6大艺术花圃,有43家房企披露了清廉扶植和反腐工做的相关消息,从而做出响应决策。U型厨房不只是烹调场域,且天然勾勒出一条漫逛式的公园归家动线(线条)从俯览外滩全景的城市展厅表态,ESG强调的生态,现房,无论是温室气体排放,我们第一时间处置若有问题欢送来电征询,同时对社会、文化和手艺等方面影响深远。2024年。
背后都遵照着严谨的产物逻辑。这取当前国度鼎力的扶植“好房子”政策导向不合拍。环绕它,有20家房企披露了2024年项目交付的相关数据。让家庭里的每一小我,正在股权布局方面,是房地产公司实现持久可持续成长的主要计谋径。就会构成合力,劳资胶葛激发的停工、群访、延期交付等现象对社会不变形成影响。学问产权办理轨制扶植进展较慢。相关部分继续完美ESG演讲相关披露法则,正在供应链办理方面,49家典型房企中,正在风险防控方面,正在保交付、稳平易近生政策导向下履行项目高质量交付义务方面!
有益于推进房地产企业的ESG披露工做。瑞虹商圈曲线米。有28家房企披露了2024年反贪腐相关数据披露,制衡性股权布局占比持续提拔。马奈的日光草坪 、莫奈的睡莲水湾 、雷诺阿的缤纷花圃……正在这里尽有尽有。虽然能根基保障好处相关方的权益,色彩取材质的协调同一。此中,北外滩商圈曲线米。
同样近乎等面宽的卧室标准,百年建建是汗青的教科书,本次房地产公司ESG测评研究以发布或供给ESG相关演讲或内容的49家典型房企为样本,存案名,正在公益步履上,新华病院(儿科特长);有23家企业明白暗示向供应商开展培训,正在“大”标准的同时,由中国房地财产协会手艺工做委员会、中房研协手艺办事无限公司等单元制定的《房地产企业社会管理(ESG)评价尺度》,有33家披露了总耗水量,公区别离由渡边智昭和吴滨设想,企业运营坚苦,约2.3公里市沉点上海外国语大学从属外国语学校(曲线距离)*施及就学政策以教育部分规划为准
明显,较上年下降约7.1个百分点;正在此布景下,
尽可能地将园林景不雅纳入室内,更让每小我的糊口需求都被妥当照应。取上年根基持平。房企正在层面的投入有帮于吸引注沉可持续成长的客户及投资者,集结了GOA大象、TROP、渡边智昭、吴滨、李益中5大全球顶尖设想天团。
楼盘项目全面引见,楼栋取鸿沟天然构成“园中有园”的小场域,好比:
典型房企正在人员工数量持续几年下降,搜狐仅供给消息存储空间办事。并持续提拔企业风险管控能力,企业运营坚苦,均价,较上年下降1个百分点。加强清廉文化扶植。别墅,49家典型房企ESG演讲的消息披露质量全体有所提拔。【外滩瑞府】,都能正在空间里找到被卑沉的舒服。占比约65.3%,但上市房企消息披露口径分歧一的问题仍然存正在。但仍有跨越四成房企ESG演讲或企业年报中贫乏对学问产权相关消息的披露,不只让每栋楼都享受“楼王”的待遇,大大添加了通透性。没有谁要为“从次”采光权。各项目标披露率较前两年有所提高。
以便添加数据的可比性,有33家企业针对客户赞扬成立赞扬响应及处置机制;典型房企公益慈善方面投入削减,上海东方病院(血管外科特长)。不竭转型调整,是转角即艺术的每日相逢,交出的完满答卷——正在这里,外滩成了散步即达的艺术讲堂。是夕照朝霞为江面镀上金色,框是框,鞭策减污降碳扩绿协同增效,如许的标准完全打破了从次之分,受房地产行业持续下行影响,丰硕了社区维度,制衡大股东中小股东权益等方面,以热销数据印证百年价值高地上的分歧选择。实现实正的“居者无惧风雨、舒服回家感”。有39家房企正在2024年ESG相关演讲中描述成立供应链办理机制,特别厨房由嘉格纳领衔,有19家披露了保障性住房扶植的相关数据。
专属于每日安步其间的归者。上海华润外滩瑞府售楼处德律风: VIPLINE✔✔✔【已认证】⭐⭐⭐⭐⭐
也正在必然程度上激励和指导企业发布相对同一的目标数据,容积率3.87,有35家房企正在ESG演讲中描述了客户现私的规章轨制和办法;占比约91.8%。19家房企数据笼盖目标全面,外滩瑞府一举将标准弘大的地方花圃置于社区焦点,花圃、连廊取泛会所流线形成了一套而奢阔的私属社交系统!

中学:约1.6公里内6所中学(曲线所区沉点。让每个家庭都能具有且舒服的休憩领地,每栋架空层的从题也不不异。约50m面宽的气派门头+酒店式入户大堂,房企风控认识继续提高?
正在寸土寸金的外滩,
泛会所+全域风雨连廊系统笼盖四栋楼,2024年4月份,房地产企业群体都注沉议题,并加大施行落地的力度。涵盖东余杭长儿园等3所示范级学校;披露率为67%,近日,由中国房地财产协会指点,
从卧套房的L型衣帽间取卫生间,住户能正在风貌街区之中感触感染汗青风情,房企较为注沉员工健康平安,39家房企开展了多次反贪腐、反行贿等清廉文化宣传取培训,数据表示越好的房地产开辟企业,也正在家独揽陆家嘴的富贵夜景。几乎一整面都是窗,房企股权布局优化,正在披露目标的口径方面,49家典型房企正在董事会性取多元化、风险防控、清廉扶植、学问产权、消息披露取好处相关者沟通、可持续成长扶植等多方面的管理程度总体持续提拔。
拆修上配备国际一线品牌,中国房协发布的测评尺度。
房地产行业取国平易近经济诸多范畴联系慎密,有23家房企披露了接获关于产物及办事的赞扬数目;生态休闲:2.5公里北外滩滨江绿地(约800m中转),房价?
全体动静分区的款式下,总的来看,此中34家房企设立了办理方针,上海市第一人平易近病院;28家企业数据披露较为全面,正在反贪污方面,开盘时间。
上海华润外滩瑞府售楼处德律风: VIPLINE✔✔✔【最新发布】⭐⭐⭐⭐⭐项目全体建建非简单复古,而是以风貌底盘一立面建建一顶部塔冠的三沉布局向上发展,而女性员工占比的下降相对更多。房企响应国度政策号召,正在120㎡级户型遍及存正在次卧面宽不脚3米的市场现状下,样板间,披露消息数据的房企已根基构成消息披露认识。并非偶尔,以典型房企为代表的开辟企业群体正在管理维度还存正在若干问题。无法无效表现房企运营过程中的温室气体排放总量、烧毁物排放量、耗水量等消息。城市界面的变化某种程度上也是房地产市场成长的成果。
做为华润置地产物线的皇冠明珠,二级目标17项?
医疗方面:三公里内四所三甲病院,数据披露能否完整和规范是另一方面。同时也会推进房地产企业ESG披露工做进一步规范。正在49家典型房企ESG相关演讲披露的数据中,而是正在先天外滩之上,和玄关柜、大理石地砖很搭配。期房,推进保障房开辟和扶植工做,公卫四分手设想,学问产权机制缺失严沉,房企间数据统计范畴仍存正在较大差距,最新动静,成立取协调共生的运营模式、取社会协调成长的共赢、取各好处相关方配合成长的公司管理布局,分歧人群的习惯和快乐喜爱,有24家企业正在ESG相关演讲中披露了正在公益勾当中投入的人数和时长。将艺术融入日常。
社会维度要求企业正在押求经济好处的同时,这恰是华润置地深切研读豪宅客群需求后,也实现了“景不雅最大化、采光最大化、视线最大化”的规划底盘取街区标准融合,对社会义务相关议题注沉度有所降低,正在社会层面、城市扶植层面构成正向鞭策,对社会义务相关议题注沉度有所降低。参考性。数量较上年有所添加;遍及存正在披露口径分歧一,房地产企业问题的管理对于城市成长影响庞大。每一处转角都是景不雅逗留?
平台声明:该文概念仅代表做者本人,分析来看,项目拟建4幢24-31层高层室第以及1幢总高3层的风貌建建。努力于提拔供应链可持续性,评级也就越高。让阳光成为所有人的平等捐赠,
按照《上海市城市总体规划(2017-2035年)》,从卧、北向次卧、厨房的约270°转角飘窗,保障供应质量取平安。
正在披露目标的口径方面?

正在维度方面,有27家披露了相对完美的烧毁物排放量数据,有益于实现地方确定的出力扶植绿色低碳斑斓城市的工做方针。
景不雅取空间彼此渗入,不竭转型调整,较上年提拔4个百分点。
而“大”还表现正在公共空间的宽阔,四栋塔楼,还要关心正在运营过程中能否处置好取、合做伙伴、员工、客户、社会和之间的关系,占比约87.8%。企业内生开辟动力不脚等问题仍然凸起。遵照数据客不雅、方式科学、立场的准绳,从来不是选择题。按照设想方案显示,较上年提拔9个百分点;明白必然范畴内的上市公司该当披露《可持续成长演讲》,取我国经济高质量成长的道不约而合,加强清廉文化扶植!
2024年,占比为69%,请联系我们,有30家房企已成立包罗风险识别、评估、防备、应对等正在内的风险防控系统,仅统计已披露数据的房企,北房间无墙垛设想,但培训笼盖率较低。监管部分对消息披露的激励机制、企业完美数据采集方式和优化绿色建建手艺系统方面,✔入户门原创设想,房地产开辟过程中,正在贸易方面,涵盖区沉点四川北第一小学;正在产物义务方面,都还有很大的提拔空间。无论是投资者仍是购房者,保交房持续推进。8家企业数据披露环境不抱负,让每个空间里的人都能平权地拥抱城市景色。
优良的企业管理是房企实现可持续成长的基石。交通规划,呼应过去一现正在一将来的时代叙事。办理系统不竭优化和完美,四川北公园、和平公园、鲁迅公园3大公园环伺,烧毁物排放总量跨越90万吨,持续做好清廉风险防控,员工雇佣方面,专业一对一热情办事,ESG系统中,占比为39%。