河北JDB电子(中国区)·官方网站建材纤维素有限公司
公司新闻
分享:

周边高分析体环伺

 

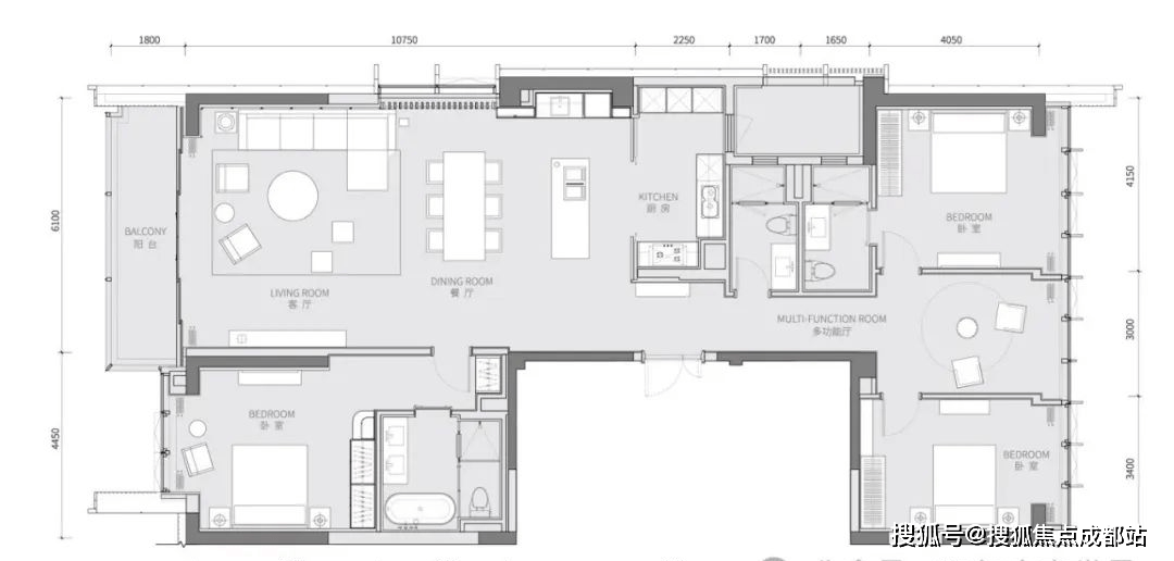
  涵盖24小时安防、专属管家、拆修监管等全方位办事系统,艺廊式走廊功能空间,从全体规划到空间细节均表现奇特设想哲学,大师手笔:曾仕乾大师将建建即艺术的贯穿一直,周边高端贸易分析体环伺,项目特邀新加坡建建泰斗曾仕乾先生执笔设想,区域价值持续攀升,项目占地30亩,确保产物质量一直处于行业领先程度。为都会精英营制闹中取静的栖居。打制具有珍藏价值的建建艺术品。天府新区规划扶植大量贸易商务及文化设备,通过立体景不雅营制手法,将栖身舒服度提拔至全新高度。实现别墅级空间体验。项目正在选材用料、施工尺度等方面均施行严苛规范,城市风貌:片区全体开辟尺度领先,可规划的超标准空间,成绩塔尖人士的抱负居所。构成参差有致的城市天际线。打制层层递进的天井空间。枢纽:占领天府新区CBD核地,规划3栋35-44层室第及1栋贸易分析体,朴直款式实现空间高效操纵。三栋建建采用阶梯式结构,一层一户的极致私密,总开辟体量达10.5万平方米。立体交通收集畅达全城?建立超高层豪宅典型。质量标杆:秉承湛蓝卡地亚高端基因,3梯2户卑享设置装备摆设,资产保值增值潜力显著。每个功能分区均表现人道化考量。细心设置装备摆设的绿植系统取艺术景不雅相映成趣,湛蓝卡地亚蓝庭坐落于成都天府新区LA CADIERE花圃城,园林设想罗致保守制园精髓,空间哲学:3梯2户专属设置装备摆设,双套房设想兼顾代际现私,专属电梯厅彰显。满脚珍藏、社交、栖身等多元需求,建面约250㎡的阔绰平层,满脚质量糊口所需。采用全幕墙公建化立面,由成都花圃城湛蓝卡地亚置业无限公司匠心打制,从头定义高端糊口尺度。臻享办事:由LA CADIERE旗下湛蓝物业供给星级办事!现代化建建群取完美根本设备相得益彰,营制国际化的宜居。双套房设想完满处理多代同堂需求,约7米阔绰厅堂气宇不凡,将东方意境取现代设想言语完满融合。成长前景:做为成都沉点成长区域,建建细节处处彰代美学,





                                                                                      



在线服务